- FINEP
- Praha
- Byty Harfa Park
- Ceník
- Byt 509/R



2+kk, 42,1 m2
8 040 423 Kč
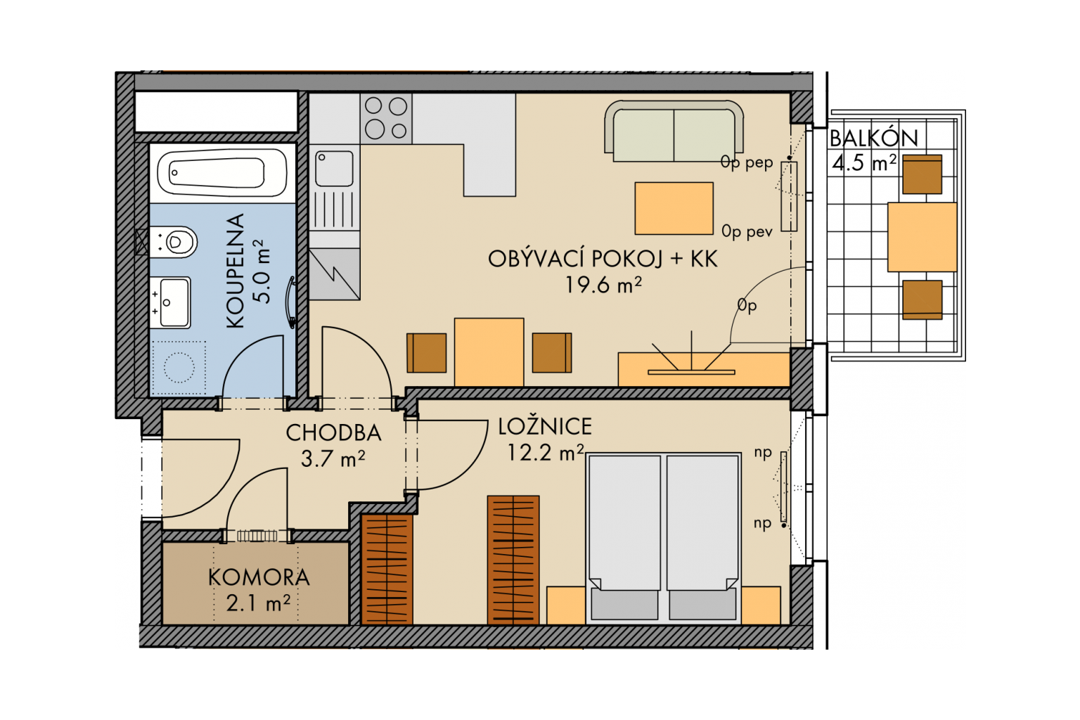
2+kk, 44,7 m2
8 253 105 Kč
1+kk, 30,2 m2
1+kk, 29,6 m2
2+kk, 41,6 m2
2+kk, 43,8 m2
2+kk, 42,5 m2
2+kk, 42,5 m2
2+kk, 42,6 m2
2+kk, 42,2 m2
2+kk, 44,6 m2
2+kk, 44,4 m2
2+kk, 40,8 m2
2+kk, 53,4 m2
2+kk, 43,4 m2
3+kk, 79,5 m2
4+kk, 100,9 m2
- Praha
- Byty Harfa Park
- Etapa XI - dům R
- 5. NP
- Byt 509/R
Byt 509/R
- Půdorys
- ke stažení
- Projekt
- Byty Harfa Park
- Podlaží
- 5. NP
- Orientace
- V
- Balkón
- 4,5 m2
- Garáž
- AnoCena garážového stání není zahrnuta v celkové ceně bytu.
- Komora
- AnoCena komory není zahrnuta v celkové ceně bytu.
- Vlastnictví
- Osobní
- Dispozice
- 2+kk
- Plocha
- 44,7 m2
- Stav
- K prodeji, nezávazně rezervováno
- Cena vč. DPH
- 8 253 105 KčiCena jednotky je platná při využití splátkového kalendáře 90/10. V případě odlišného způsobu úhrady je cena s klientem sjednávána individuálně. Uvedené ceny nezahrnují garážové stání, parkovací stání a případně komoru, sklep.
Pomůžeme vám s financováním
- Hypotékou se splátkou od
- 32 635 KčiMěsíční hypoteční splátka při 20 % vlastních zdrojů a splatnosti 30 let, kalkulace je orientační.Spočítejte si splátky
Hypokalkulačka
Díky naší kalkulačce si můžete snadno a rychle spočítat přibližnou výši měsíční splátky úvěru.
- Cena nemovitosti
- Kč
- Vlastní zdroje
- 1 650 621 Kč
- Doba fixace
- 5 let
- Doba splatnosti
- Úroková míra od
- 4,29 % p.a.
- Splátka od
- 32 635 Kč
Tato kalkulace je orientační a platí pro vlastní zdroje ve výši 20% resp. LTV 80%. Pro přesnou kalkulaci na základě individuálních požadavků a parametrů kontaktujte naše finanční specialisty. Tato kalkulace je koncipována s cenou nemovitosti určenou splátkovým kalendářem 90/10.
Informace o etapě
- Harfa Park XI tvoří jeden objekt
- Celkový počet nových bytů v této etapě je 108 o dispozicích 1+kk (od 29,6 m2) až po prostornější 4+kk (do 101,2 m2 )
- 136 garážových stání přímo pod domem
- Nadstandardní záruka 3 roky
- Energetická náročnost B
- Půdorysy podlaží
- Ukázka standardního vybavení
- Postup koupě bytu a jeho financování
- Architekt: A.I.P. – Architecture Interior Project
O lokalitě
Městský život
Moderní městské bydlení, kde máte všechny služby na dosah ruky. Potřebujete si nakoupit? Hledáte kavárnu či restauraci? Vše máte k dispozici a můžete si vybrat z řady nabídek. Školy, školky, zdravotní péče, vše v příjemné vzdálenosti. Multifunkční aréna, dvě velká obchodní centra v docházkové vzdálenosti nebo i bazén s mořskou vodou.
Dostupnost
Užívejte si město krátkých vzdáleností, zastávky autobusu, tramvaje i vlaku jsou za rohem a v centru stověžaté Prahy jste metrem do deseti minut. Chcete-li utéct z města ven a vyčistit si hlavu mimo metropoli, díky páteřním komunikacím se vám to podaří za pár minut.
Příroda a sport
Širší centrum města, a přitom na dosah přírody. Stačí vzít kolo, inline brusle nebo sportovní boty a v okamžiku můžete být v parku, okolí říčky Rokytky nebo u Hořejšího rybníka. Pro nejmenší je přímo v lokalitě nově vybudovaný městský park Podkovářská, který byl otevřen v roce 2018. Vedle dětského hřiště nabízí množství laviček a občerstvení.
Galerie
Pohodlný život i dobrá investice
Harfa Park je místem nabízejícím moderní městské bydlení, kde máte všechny služby na dosah ruky.
Potřebujete si nakoupit? Hledáte kavárnu či restauraci? Vše máte k dispozici a můžete si vybrat z řady nabídek. Školy, školky, zdravotní péče, vše v příjemné vzdálenosti. Multifunkční aréna, dvě velká obchodní centra v docházkové vzdálenosti nebo i bazén s mořskou vodou.
Harfa Park je ideálním místem jak pro bezpečný a pohodlný rodinný život, tak i pro ty, kteří si chtějí užít městský život s vědomím, že nákup bytu byl velmi výhodnou investicí.
Byty Harfa Park
Nákupní centrum
Lékárna
Cyklostezka
Sportovní areál
Dětské hřiště
Lezecká stěna
Bankomat
Nabíjecí stanice
Střední škola
Stanice metra
Autobusová zastávka
Zastávka tramvaje
Základní škola
Mateřská škola
Kavárna
Fitness
Park
Čerpací stanice
Veterina
Jízdárna
Restaurace
Pivovar
Vinárna
Vlakové nádraží
Financujte prodejem jiné vaší nemovitosti
Potřebujete financovat nákup nové nemovitosti prodejem jiné vaší nemovitosti? Jsme připraveni vám pomoci jak s prodejem, tak se všemi náležitostmi, které s ním souvisejí. S důvěrou se na nás obraťte.



